Master Thesis | Ruben Mast | 4th semester | summer semester 2020
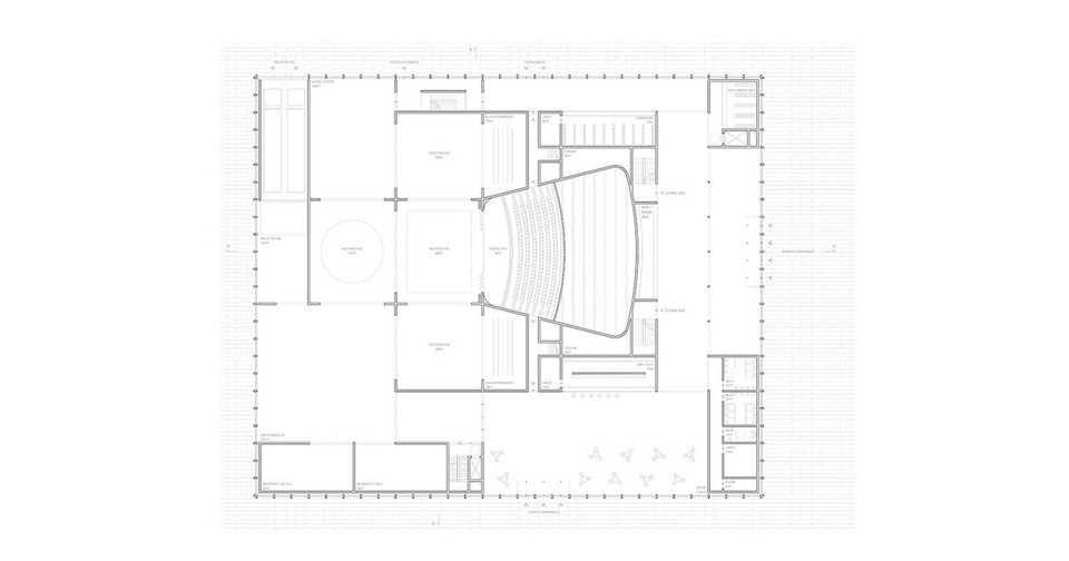
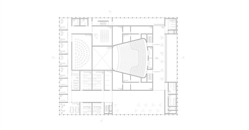
For the upcoming renovation of the Littmann Building, an interim building for temporary opera use is to be constructed on the site of the Wagenhallen. After the renovation, it will be put to a new use. The design provides for a clear structure that is prominently positioned in the urban planning situation, but still allows a clear view of the Wagenhallen and the complete preservation of the Containercity.
The hall as the most introverted point dissolves towards the outside and ends in a transparent translucent façade. Secondary uses are organised compactly in the floor plan as set elements. Above the stage area there are areas for artists, musicians and directors.
A structurally independent building envelope forms the space closure towards the outside. This allows the opera structure to be subsequently dismantled and creates a use-open starting point for subsequent use. While during the day the building appears as a neutral volume, in the evening the illuminated interior space emerges to the outside and the design presents itself to the area of the Wagenhallen as a luminous urban building block.
The work was supervised by Prof. Tobias Wulf.












