Bachelor thesis by Marie Jähnisch in summer semester 2024 | Focus: Space
"Housing diversity - living socially together"
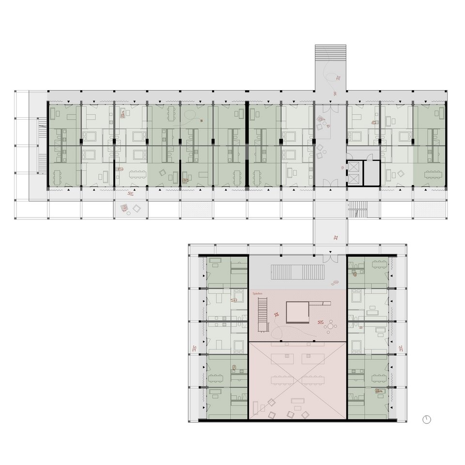
The number of social housing units in Germany is steadily decreasing, although poverty continues to increase and there is a great need for subsidized housing. the design takes advantage of this opportunity and creates structures to enable different lifestyles and income classes to live together on a former university campus in Kaiserslautern. In addition, the partly subsidized living space should be flexible in use and adaptable to different living situations.
The bachelor thesis was supervised by Prof. Jens Betha







