Conceptual and Constructive Design Project | 1st Semester | Winter Semester 2019/20
Row houses built in the 1950s are one of the most common building forms of German post-war modernism. Not only is their building fabric outdated, but many of the residents have grown old with the houses. The buildings in Stuttgart-Rot were built for a different society and for different needs. The task of the design was to enable new forms of living in the row buildings - through co-living with a mix of generations, shared infrastructure, an upgrade of the open spaces and the thermal refurbishment of the building envelope.
The project was supervised by Prof. Jens Betha and Prof. Wolfgang Grillitsch.
In her project, Anna Aichele opens up living for new activities. Public functions are brought into the private building. The 75-year-old resident likes to bake and sell her cake in the café, the hipster performs as a standup comedian in the multipurpose room, and the spry retiree offers a bicycle consultation hour once a week in his workshop.
In her work, Franziska Ottilie Geesmann consistently reflects on the difference between family life in the post-war period when the buildings were created and today's situation, which makes social structures outside the family increasingly important. Whereas in the past it was individual apartments with small rooms within the apartment, today it is a house family thrown together. The design tries to give everyone their space, a place to cook, eat and laugh together.
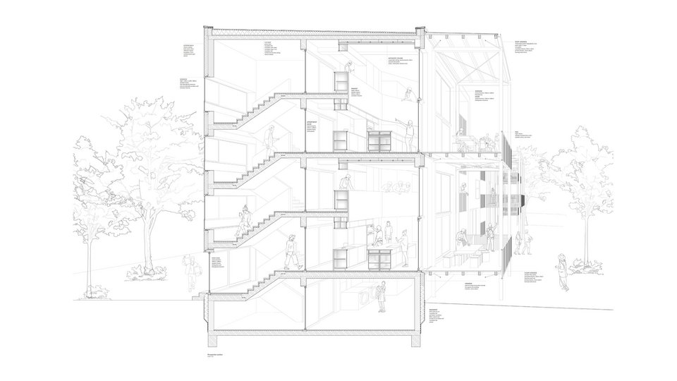
Conceptual and Constructive Design Project | Annika Schürk, Ann-Kathrin Simon & Judith Lapp | 1st semester | Winter Semester 2020/21
The AddUnity project by Annika Schürk, Ann-Kathrin Simon and Judith Lapp is focused on community. To counteract the prevailing anonymity in the monotonous row buildings of the area in Stuttgart Rot, new open spaces are created with old stock.
In the time between the final demolition and the new construction of the quarter, a communication platform is to be created with the help of partial demolitions and temporary additions. Impulses are to be set, creating new spaces of possibility.
The additions in the form of a modified scaffolding system allow different applications and enable a transition between public squares to private balcony extensions. This activates, enlivens and utilises the generous open spaces between the existing buildings.
The standardised modular scaffolding system can be modified by small interventions without interfering with the structure of the scaffolding. Simple furniture can be built by the residents themselves in the course of a workshop, so that everyone can actively participate in the project. The different module sizes also allow the scaffolding to adapt optimally in height and width to the existing buildings.
The project was supervised by Prof. Wolfgang Grillitsch and Prof. Karsten Weigel.














