Design specialisation in technology | Daniel Misch & Hannes Schüssler | summer semester 2024 | 3rd semester
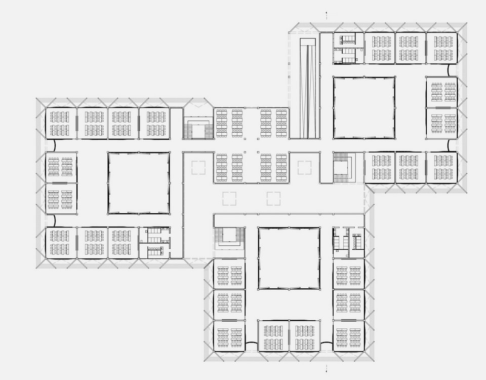
The European School Kerpen was relocated to Cartagena in Colombia in accordance with the task and adapted accordingly. Particular attention was paid to the materiality and structure of the building, which was developed by analysing the architecture and culture, but also the climate of Colombia. By opening up the building, restructuring the floor plan, constructing a second shell and implementing a new ventilation system, it was possible to operate the school in Cartagena.
The project was supervised by Professor Volkmar Bleicher.





