Design IP 2 | Ivana Orec & Daniel Schlosser | 3rd semester | summer semester 2021
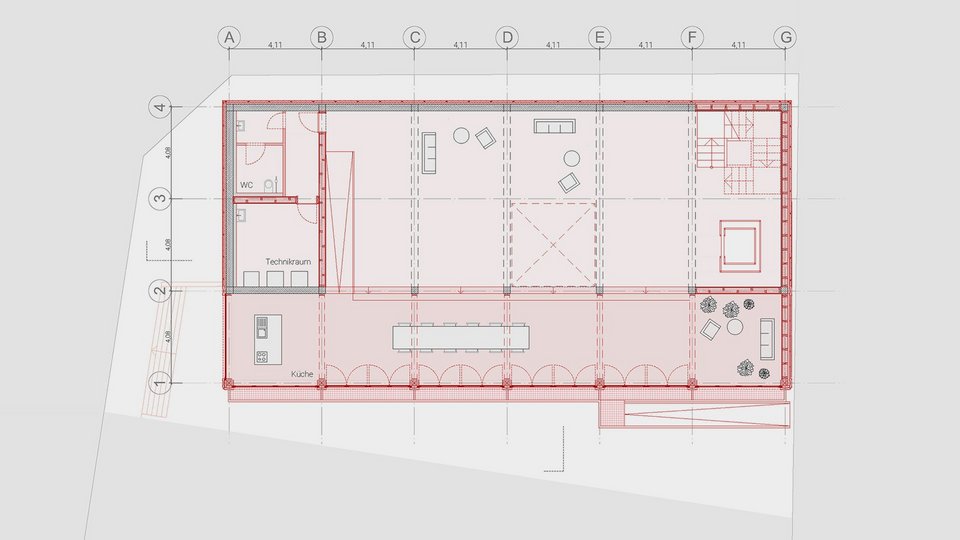
Holzmarkt Bauer in Bietigheim-Bissingen is a relic from a bygone era. For a future-oriented reuse, it is being converted into a house for students. In the process, its reinforced concrete base will serve as a platform for a lattice construction made of wood, into which the living spaces will be inserted. A door to the south provides access to a large common space on the first floor, which is extended throughout the building by open atriums and staircases. The open space is formed by the students' rooms, which are distributed on the upper floors. These each have two beds, as well as a small bathroom and desk. The open design is reinforced by French doors on the south side with a small exit to the fresh air. The building is designed as a modular system, which means that identical components are always prefabricated and then assembled on site. The walls are inserted between the cross supports and the ceiling elements are placed on the main beams. This allows the building to be erected and dismantled quickly.
The work was supervised by Walter Huber, Samuel Meile, Prof. Juri Troy and Prof. Stefan Zimmermann.













