Design 1 in Bachelor Architecture

20.04.2020, by Prof. Jonathan Scheder

The task:

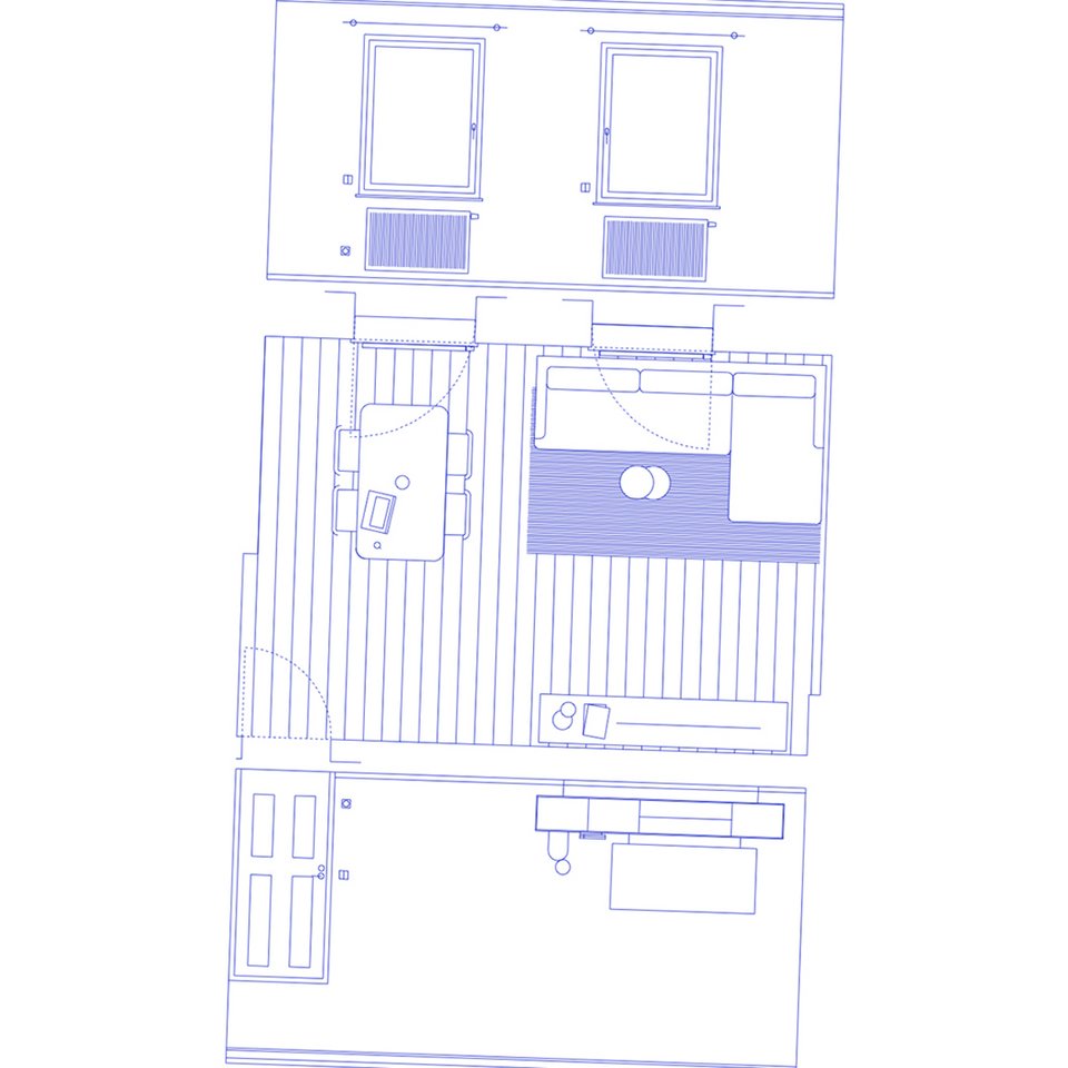
Room is not directly accessible to the mere senses. It is difficult to describe how it is perceived or experienced. Only through limiting and defining structural elements such as walls, floor and ceiling can it be consciously understood as an architectural space. In the cycle Raumlesen (Reading Space) students explore everyday spatial situations and atmospheres.

In the first task students draw scale plans of their room or the room in which they work, thus also providing insight into the current learning situation during the Corona pandemic.